pinkandtrash.com
HOME
About
Contact
Disclaimer
Privacy
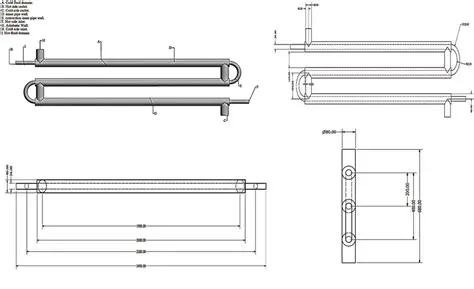
Counterflow Heat Exchanger Design
Oct 13, 2025
by pinkandtrash.com
27
views