pinkandtrash.com
HOME
About
Contact
Disclaimer
Privacy
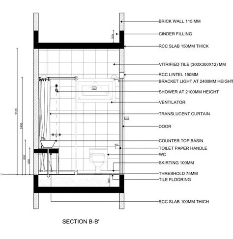
The Bathroom Floor Dimensions
Oct 13, 2025
by pinkandtrash.com
42
views